| Verfügbarkeitsstatus: | |
|---|---|
| Menge: | |
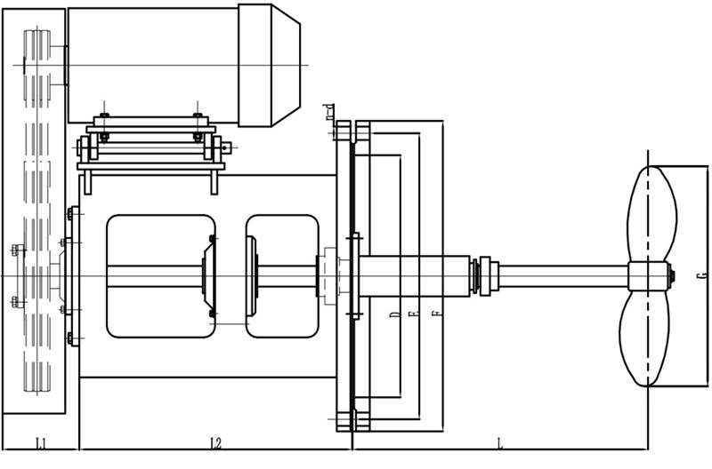
Einführung des P-Belt-Typ-Rührwerks mit seitlichem Eintritt:
Der Einbau eines Rührwerks mit seitlichem Eingang im Öltank dient zum Mischen von Ölen oder anderen Medien und dient dann der Harmonisierung, Wärmeübertragung, Homogenisierung und Verhinderung der Ansammlung von Sedimenten.Der Einsatz dieser Ausrüstung bietet viele Vorteile, wie z. B. geringe Investition, bequemen Betrieb, hohe Effizienz, geringer Stromverbrauch, geringe statische Elektrizitätserzeugung im Medium und garantierte Produktqualität.
Der P-Band-Seiteneingangsmischer kann in Erdöltanks, Schmiertanks, Heizölfässern, Paraffintanks, Asphalttanks (für schweren Gummiasphalt, Basis-Erdölbitumen, Asphalt der Güteklasse A) und einigen Lagertanks für Additive und andere installiert werden Medium, das gerührt werden muss.
Material des Seitenrührwerks für Lagertanks
Wie wählt man die Dichtungsbaugruppe des Rührwerks aus?
Dies ist der Schlüssel zur Verhinderung des Austretens giftiger und brennbarer Medien bei der Auswahl der richtigen Dichtungsbaugruppe für das Rührwerk, um das Laufen, Laufen, Tropfen und Auslaufen chemischer Geräte zu verhindern.
Bei der Gleitringdichtung handelt es sich um zwei ringförmige Dichtelemente, die an den ebenen Stirnseiten der glatten Oberfläche gegen den Mediumsdruck bzw. die Federkraft gegeneinander verdrehbar anliegen und so eine Dichtstruktur bilden.Wenn sich die Welle dreht, werden der Federsitz, die Feder, die Federdruckplatte, der bewegliche Ring und dergleichen angetrieben, um sich vollständig zu drehen.Durch die Federkraft wird der bewegliche Ring fest auf den feststehenden Ring gedrückt.Wenn sich die Welle dreht, drehen sich der bewegliche Ring und die Welle vollständig, und der statische Ring ist stationär am Rahmen befestigt, und die ringförmige Dichtungsendfläche des beweglichen Rings und des statischen Rings verhindert das Austreten des Mediums.Daher ist es aus struktureller Sicht wichtig, dass die Gleitringdichtung die Axialdichtung, die leichter leckt, durch eine Enddichtung ersetzt, die nicht leicht leckt.
Die Dichtung ist unterteilt in: Packungsdichtung, Gleitringdichtung und Heliumdichtung.Bei der Auswahl der Dichtung für die Rühreinheit sollte der Dichtungszustand entsprechend der Temperatur, dem Druck sowie der Korrosivität und dem pH-Wert des Rührmediums ausgewählt werden.
Hot Tags: Rührwerk mit seitlichem Eingang für Lagertanks, China, Hersteller, Lieferanten, Fabrik, Kauf, maßgeschneidert, Angebot, hergestellt in China
Einführung des P-Belt-Typ-Rührwerks mit seitlichem Eintritt:
Der Einbau eines Rührwerks mit seitlichem Eingang im Öltank dient zum Mischen von Ölen oder anderen Medien und dient dann der Harmonisierung, Wärmeübertragung, Homogenisierung und Verhinderung der Ansammlung von Sedimenten.Der Einsatz dieser Ausrüstung bietet viele Vorteile, wie z. B. geringe Investition, bequemen Betrieb, hohe Effizienz, geringer Stromverbrauch, geringe statische Elektrizitätserzeugung im Medium und garantierte Produktqualität.
Der P-Band-Seiteneingangsmischer kann in Erdöltanks, Schmiertanks, Heizölfässern, Paraffintanks, Asphalttanks (für schweren Gummiasphalt, Basis-Erdölbitumen, Asphalt der Güteklasse A) und einigen Lagertanks für Additive und andere installiert werden Medium, das gerührt werden muss.
Material des Seitenrührwerks für Lagertanks
Wie wählt man die Dichtungsbaugruppe des Rührwerks aus?
Dies ist der Schlüssel zur Verhinderung des Austretens giftiger und brennbarer Medien bei der Auswahl der richtigen Dichtungsbaugruppe für das Rührwerk, um das Laufen, Laufen, Tropfen und Auslaufen chemischer Geräte zu verhindern.
Bei der Gleitringdichtung handelt es sich um zwei ringförmige Dichtelemente, die an den ebenen Stirnseiten der glatten Oberfläche gegen den Mediumsdruck bzw. die Federkraft gegeneinander verdrehbar anliegen und so eine Dichtstruktur bilden.Wenn sich die Welle dreht, werden der Federsitz, die Feder, die Federdruckplatte, der bewegliche Ring und dergleichen angetrieben, um sich vollständig zu drehen.Durch die Federkraft wird der bewegliche Ring fest auf den feststehenden Ring gedrückt.Wenn sich die Welle dreht, drehen sich der bewegliche Ring und die Welle vollständig, und der statische Ring ist stationär am Rahmen befestigt, und die ringförmige Dichtungsendfläche des beweglichen Rings und des statischen Rings verhindert das Austreten des Mediums.Daher ist es aus struktureller Sicht wichtig, dass die Gleitringdichtung die Axialdichtung, die leichter leckt, durch eine Enddichtung ersetzt, die nicht leicht leckt.
Die Dichtung ist unterteilt in: Packungsdichtung, Gleitringdichtung und Heliumdichtung.Bei der Auswahl der Dichtung für die Rühreinheit sollte der Dichtungszustand entsprechend der Temperatur, dem Druck sowie der Korrosivität und dem pH-Wert des Rührmediums ausgewählt werden.
Hot Tags: Rührwerk mit seitlichem Eingang für Lagertanks, China, Hersteller, Lieferanten, Fabrik, Kauf, maßgeschneidert, Angebot, hergestellt in China